Produits
Eléments de construction
Drain drainage linéaire
Avaloirs
Toits et façades
Caniveaux en acier inox
Fonte de voirie
Couvertures simples et en série
Dispositifs de fermeture Métal
Couvercles spéciaux Detego
Systèmes de puits
Séparateur d'hydrocarbures
Chambres à câbles
Produits spéciaux
Cave
Technique du bâtiment
Siphon de sol
Drainage de toit et façade
Drainage salle de bain
Séparateurs
Stations de relevage
Dispositif anti-refoulement
Gestion des eaux pluviales
Installations de sédimentation
Filtres techniques / adsorbants
Séparateurs d'hydrocarbures
Installation de rétention et de stockage
Évacuation - Systèmes d'étranglement
Stations de pompage
Systèmes d'avarie
Tunnel & Eléments speciaux
Tunnel routier
Tunnel ferroviaire
Maison & Jardin
Dalles à engazonner ACO Grass
Stabilisation du gravier
Racle-pieds
Slimline
Rain4me
Drainage de façade
Enterprise
ACO Suisse
Histoire de l'entreprise ACO
Sites
Contact
Durabilité
ACO WaterCycle
Ambassadeur ODD 6
Conditions générales de vente et de livraison
CGV
Profession et carrière
Carrière
Application
Gestion des eaux pluviales
Ville éponge
Infrastructure énergétique
Autoroute
Tunnel routier
Tunnel ferroviaire
Terrains industriels
Stations-service
Espaces publics
Drainage des salles de bains
Cuisine pour collectivités
Drainage de condensats
Solutions Green City
Industrie agroalimentaire
Drainage au sol
Cave
Planification
ACO Stations de pompage
ACO Stations de relevage
Séparateurs de graisse
BIM @ ACO
Devis Finder
ACO ProjectManager
Configurateur de puits ACO
ACO DRAIN Design
Recommandations de mise en œuvre
Solutions
Drainage linéaire
Fonte de voirie
Dispositifs de fermeture
Gestion des eaux pluviales
Regards
Drainage de toitures et façades
Drainage au sol
Drainage des salles de bains
Technique de séparation
Station de relevage des eaux usées
Références
Swissdrain
Multiline
askACO | service
Informations
Video
Support
Detego
service ACO
Prestations de service
Entretiens
Réparation / Pièces de rechange
Newsletter
Download
Prix courant / Brochures
Prix courant et Brochures
Formulaire de commande
Formulaire de commande Technique du bâtiment
Instructions d'installation
Instructions d'installation ACO
Textes de soumission
Textes de soumission
BIM
Building Information Modeling
Déclaration des performances
Déclaration des performances conforme au réglement ACO
Font de voirie
Table de conversion / Inscriptions possibles
Contact
ACO Suisse
ACO en suisse
Service éxterieur / intérieur
Conseils ACO Suisse
Formular de contact
Formulaire de contact
fr
DE
DE
FR
FR
IT
IT
fr
DE
DE
FR
FR
IT
IT
Produits
Gestion des eaux pluviales
Installations de sédimentation
Sedismart
Sedismart
Béton polymère
Structure monolithique
Résistant aux intempéries, aux produits chimiques et au sel
Construction interne optimisée pour améliorer la sédimentation
Protection contre l'ensablement des systèmes d'infiltration et des canalisations d'eaux pluviales
Article
VEUILLEZ PATIENTER...
Vos données sont en cours de chargement...
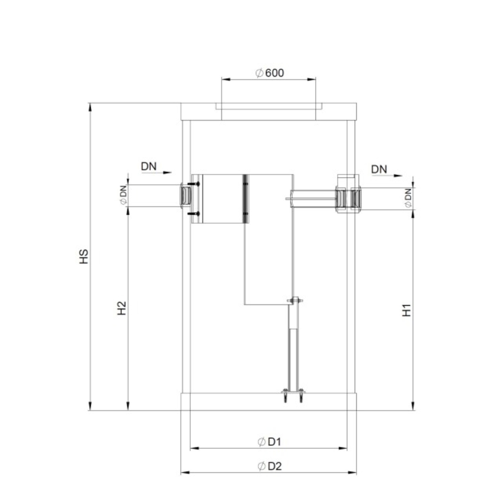
N° d´art.
ancien code d’art.
kg
Débit traité selon SN 592 000 (standard)
l/s
Débit traité selon SN 592 000 (augmenté)
l/s
TN
Volume du débourbeur
Litres
Entrée / sortie
mm
H1
mm
H2
mm
D1
mm
D2
mm
HS
mm
Downloads
2088873
ACO Sedismart Typ 1000 zum Schutz vor Versandung
444091
1055,0
20.9
5
1000
400
110
1295
1315
1000
1120
1962
2088874
ACO Sedismart-C Typ 1200 zum Schutz vor Versandung
444092
1425
30.1
8
1200
690
160
1390
1410
1200
1320
1835
2088875
ACO Sedismart-C Typ 1500 zum Schutz vor Versandung
444093
2364
47.1
12
1500
2509
160
1405
1425
1500
1620
1835
2088876
ACO Sedismart-C Typ 2000 zum Schutz vor Versandung
444094
3895
83.7
21
2000
5835
200
1490
1510
2000
2120
2015
2088877
ACO Sedismart-C Typ 2500 zum Schutz vor Versandung
444095
6956
139.0
35
2500
6670
250
2035
2055
2500
2620
2915
« Retour
Vue d´impression