Prodotti
Elementi da costruzione
Drain Drenaggio lineare
Drenaggio puntuale
Tetto- & facciata
Canalette in acciaio inox
Prodotti in ghisa
Copertine singolo e copre series
Chiusini Metallo
Coperture speciali per pozzi Detego
Sistemi di pozzetti
Separatore oli e minerali
Pozzetti de cavi
Prodotti speciali
Seminterrato
Impiantistica
Drenaggio a pavimento
Drenaggio per tetti e facciate
Drenaggio per bagno
Separatori
Impianto di sollevamento
Sistema antiriflusso
Gestione delle acque meteoriche
Impianti di sedimentazione
Filtri tecnici / adsorbitori
Separatore di oli minerali
Impianto di ritenzione e stoccaggio
Sistemi di regolazione controllata del deflusso
Stazioni di pompaggio
Sistemi avaria
Tunnel & Elementi speciali
Galleria stradale
Galleria ferroviaria
Casa e Giardino
Grigliato erboso
Stabilizzazione della ghiaia
Zerbino
Slimline
Rain4me
Drenaggio della facciata
Azienda
ACO Svizzera
Storia dell'azienda ACO
Sedi ACO Svizzera
Contatti
ACO Group
Leader di mercato mondiale nel drenaggio
Sostenibilità
ACO WaterCycle
Ambasciatore SDG 6
Condizioni commerciali generali
Condizioni commerciali generali
Professione e carriera
Carriera
Applicazioni
Gestione delle acque meteoriche
Sponge city
Energia Infrastruttura
Autostrada
Galleria stradale
Galleria ferroviaria
Aree industriali
Stazioni di servizio
Spazi pubblici
Drenaggio di bagni
Grandi cucine
Drenaggio della condensa
Soluzioni Green City
Industria alimentare
Drenaggio pavimento
Scantinati
Progettazione
ACO Stazioni di sollevamento
ACO Stazioni di pompaggio
Separatori di grassi
BIM @ ACO
Devis Finder
ACO ProjectManager
ACO Configuratore per pozzi
ACO DRAIN Design
Raccomandazioni di installazione
Soluzioni
Drenaggio lineare
Prodotti in ghisa
Chiusini
Gestione delle acque meteoriche
Pozzetti
Drenaggio per tetti e facciatio
Drenaggio a pavimento
Drenaggio per bagno
Separatori
Impianto di sollevamento acque
Referenze
Swissdrain
Multiline
askACO | Servizio
Informazioni
Supporto
Detego
acoACO Servizio
Servizi
Manutenzione
Riparazione / ricambi
Newsletter
Download
Listino prezzi / Brochure
Listini prezzi / Brochure
Modulo d'ordine
Modulo d'ordine Impiantistica
Esempi di posa
ACO Esempi di posa
BIM
Building Information Modeling
Testi di chiamato
Dichiarazione di prestazione
Dichiarazione di prestazione
Prodotti in ghisa
Tabella di comparazione
Contatti
ACO Svizzera
ACO in Svizzera
Servizio esterno / interno
Consulenza ACO Svizzera
Formulario di contatto
Formulario di contatto
it
DE
DE
FR
FR
IT
IT
it
DE
DE
FR
FR
IT
IT
Prodotti
Gestione delle acque meteoriche
Impianti di sedimentazione
Sedismart
Sedismart
Calcestruzzo poimerico
Costruzione monolitica
Resistente agli agenti atmosferici, a sostanze chimice, gelo e al sale antigelo
Costruzione interna speciale per una sedimentazione
Protezione contro l'insabbiamento degli impianti di infiltrazione e dei canali delle acque meteoriche
Articolo
N° art.
veccio N° art.
kg
Portata di trattamento secondo SN 592000 (standard)
l/s
Portata di trattamento secondo SN 592000 (aumentata)
l/s
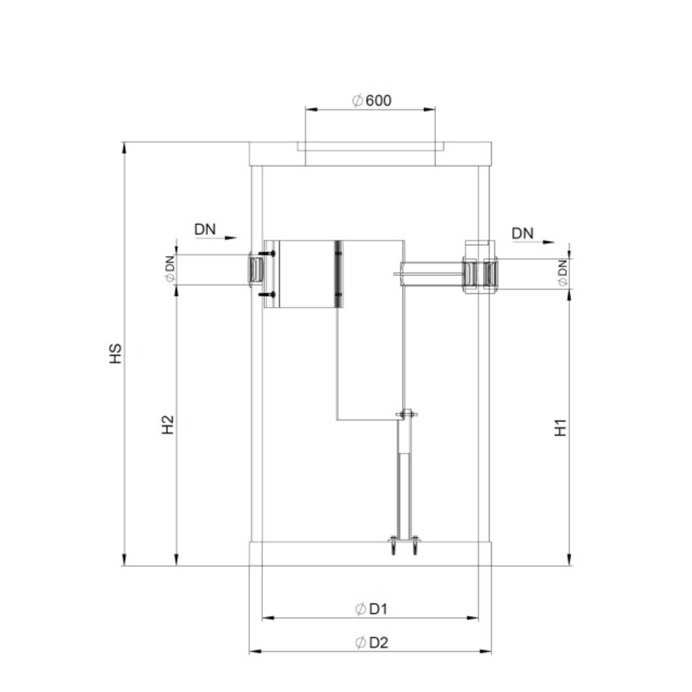
DN
Volume raccolta fanghi
Litri
Entrata / scarico
mm
H1
mm
H2
mm
D1
mm
D2
mm
HS
mm
Downloads
2088873
ACO Sedismart tipo 1000 per la protezione dall'insabbiamento
444091
1055,0
20.9
5
1000
400
110
1295
1315
1000
1120
1962
2088874
ACO Sedismart-C tipo 1200 per la protezione dall'insabbiamento
444092
1411,0
30.1
8
1200
690
160
1390
1410
1200
1320
1835
2088875
ACO Sedismart-C tipo 1500 per la protezione contro l'insabbiamento
444093
2330,0
47.1
12
1500
2509
160
1405
1425
1500
1620
1835
2088876
ACO Sedismart-C tipo 2000 per la protezione contro l'insabbiamento
444094
3864,0
83.7
21
2000
5835
200
1490
1510
2000
2120
2015
2088877
ACO Sedismart-C tipo 2500 per la protezione contro l'insabbiamento
444095
6912,0
139.0
35
2500
6670
250
2035
2055
2500
2620
2915
« Indietro
Vista stampa