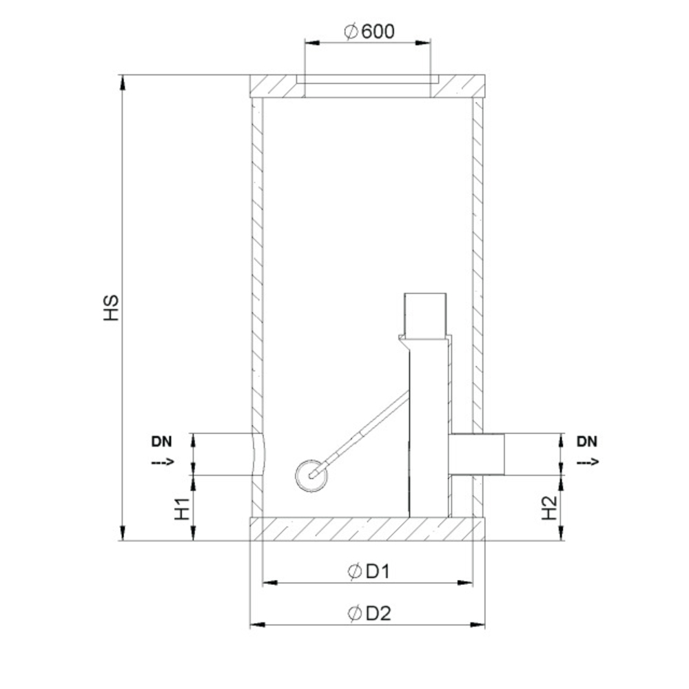
Deflusso strozzato ad effetto costante

Produttore

  • Calcestruzzo polimerico e plastica
  • Sistema di deflusso strozzato ad effetto costante del flusso nel pozzetto
  • Portata 0,1 – 30 l/s
  • Con troppopieno di emergenza
  • È possibile scegliere tra diverse altezze del pozzetto
  • Il braccio del galleggiante regola una portata costante in funzione del livello, quindi un possibile risparmio di circa il 15 - 20% della quantità di stoccaggio
  • Configurazione individuale al momento del conferimento dell'ordine (altezza massima di accumulo, larghezza nominale, con/senza troppopieno di emergenza, ecc.)
N° art. veccio N° art. kg Entrata / scarico
mm
H1 H2 D1 HS Portata Downloads
2078763 Deflusso strozzato ad effetto costante 314140 1184 110 395 395 1000 1982 0,1 - 1
2078764 Deflusso strozzato ad effetto costante 314141 1184 125 300 300 1000 1982 1 - 30