LipuLift-P-DAP Niveau d'équipement 3

Fabricant

  • Avantages du produit
    • Séparateur de graisse, prélèvement d'échantillons et station de pompage dans un seul récipient
    • Pas de tuyauterie nécessaire entre les composants
    • Une seule commande d'ensemble de l'installation
    • Echange d'air optimal grâce à l'interruption de la paroi de séparation entre le séparateur de graisse et la station de pompage
    • Volume utile élevé de la station de pompage pour une faible usure de la pompe
    • Quatre niveaux d'extension possibles

  • Séparateur de graisse LipuLift-P-DAP selon norme SN EN 1825 et DIN 4040-100
  • Polyéthylène
  • Station de pompage double intégrée conforme à la norme SN EN 12050
  • Deux ouvertures pour recevoir des anneaux d'appui d'une hauteur totale de 300 mm maximum et des recouvrements pour les classes de charge A, B ou D selon SN EN 124
  • Pour installation enterrée
  • Niveau d'équipement 3
  • Profondeur minimale d'entrée : 900 mm (utilisation de couvercles sans anneaux d'appui)
    Profondeur maximale d'entrée : 1.200 mm (utilisation de couvercles avec anneaux d'appui d'une hauteur totale de 300 mm)
  • Station de pompage intégrée accessible par l'un des couvercles de puits
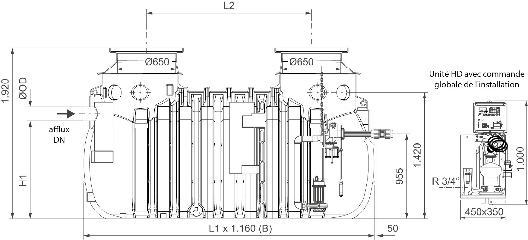
    • Raccord de pression : 2" - ∅ 63 mm (tube PE)
    • Clapet anti-retour
    • Tension de service : 400 V, 50 Hz, vitesse de rotation : 2900 tr/minClasse de protection
    • IP 68 ; mode de fonctionnement : S1

  • Version LipuLift-P-DAP
    • Avec une conduite d'aspiration en PE-HD DN 65 (∅ 75 mm) préparée en usine, avec raccord Storz B et couvercle borgne.
    • Avec nettoyage intérieur automatique à haute pression, rechargement et pompe d'évacuation pour des hauteurs d'évacuation allant jusqu'à 10 mètres
    • Élimination, nettoyage et remplissage avec couvercle fermé

  • Installation enterrée
VEUILLEZ PATIENTER...

Vos données sont en cours de chargement...

N° d´art. ancien code d’art. Type Taille nominale Largeur nominale
mm
Débourbeur
l
Vol. graisse
l
Capacité totale
l
Downloads
2093722 Séparateur de graisse avec station de pompage intégrée LipuLift-P-DAP Niveau 3 3204.20.41 Sat-100/D NG 4 110 590 370 1260
2093731 Séparateur de graisse avec station de pompage intégrée LipuLift-P-DAP Niveau 3 3207.20.41 Sat-100/D NG 7 160 780 550 1760
2093732 Séparateur de graisse avec station de pompage intégrée LipuLift-P-DAP Niveau 3 3207.20.42 Sat-150/D NG 7 160 780 550 1760
2093743 Séparateur de graisse avec station de pompage intégrée LipuLift-P-DAP Niveau 3 3210.20.42 Sat-150/D NG 10 160 1010 710 2260
2129379 Séparateur de graisse avec station de pompage intégrée LipuLift-P-DAP Niveau 3 3210.20.43 Sat-200/D NG 10 160 1010 710 2260
Abmessung Bild
N° d´art.Taille nominaleDimensions
L1 L2 H1 B1
mm mm mm mm
2093722 NG 4 2770 1500 1125 1160
2093731 NG 7 3260 1990 1100 1160
2093732 NG 7 3260 1990 1100 1160
2093743 NG 10 3750 2480 1100 1160
2129379 NG 10 3750 2480 1100 1160