Separatore di grassi, stazione di campionamento e di pompaggio in un unico contenitore
Non sono necessarie tubazioni tra i componenti
Un solo controllo complessivo del sistema
Scambio d'aria ottimale grazie all'interruzione della parete divisoria tra il separatore di grassi e la stazione di pompaggio
Elevato volume utile della stazione di pompaggio per una bassa usura della pompa
Possibilità di quattro stadi di espansione
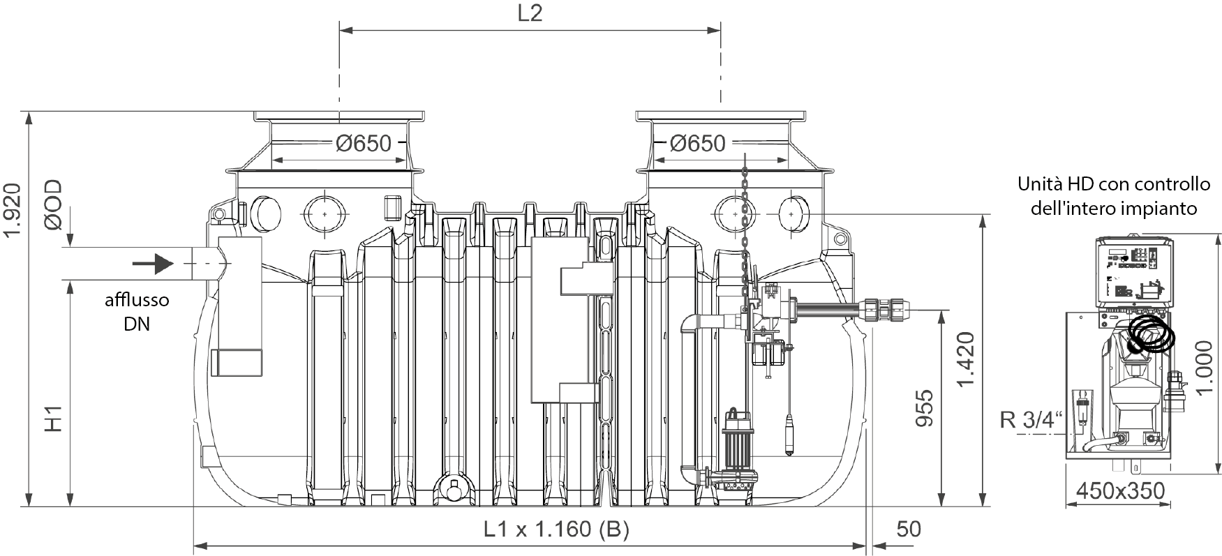
Separatori di grassi LipuLift-P-DAP secondo norme SN EN 1825 e DIN 4040‑100
Polietilene
Stazione di pompaggio doppia integrata in conformità alla norma DIN EN 12050
Due aperture per l'alloggiamento di anelli di supporto con un'altezza totale di max. 300 mm e coperture per le classi di carico A, B o D secondo SN EN 124
Per installazione all'esterno
Livello 3
Profondità minima di ingresso: 900 mm (utilizzo di coperture senza anelli di supporto) Profondità massima di ingresso: 1.200 mm (utilizzo di coperture con anelli di supporto con altezza totale di 300 mm)
Stazione di pompaggio integrata accessibile tramite uno dei chiusini
Attacco di pressione: 2" - ∅ 63 mm (tubo PE)
Prevenzione del riflusso
Tensione di esercizio: 400 V, 50 Hz, velocità: 2900 rpmClasse di protezione
IP 68; modalità operativa: S1
Versione LipuLift-P-DAP
Con tubo di aspirazione in PE-HD DN 65 (∅ 75 mm) predisposto in fabbrica, con giunto Storz-B e coperchio fittizio
Con pompa interna automatica ad alta pressione per la pulizia, il riempimento e lo smaltimento, per altezze di smaltimento fino a 10 metri.
Smaltimento, pulizia e riempimento a coperchio chiuso